Lot 3 - Land At, 77 Aldenham Road, Bushey, Hertfordshire, WD23 2FU

  • Unconditional Online Auction Sale
  • Guide Price* : £1200000
  • Bedrooms: 0

Addendum

We have been notified This Lot is subject to Vat please check the legal documents for further information.

Landmark Auctions Are Pleased To Offer For Sale By Public Auction On : 15th February 2024. This is an open site for you to view.


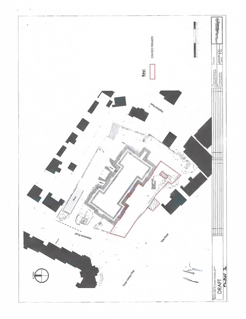
Description

A site measuring circa 0.19 acres for sale on a 999 yr new lease with potential to create a mix use scheme subject to planning consents.

Tenure

Leasehold

Accommodation

The lot comprises a unused 30 lot car park which we understand could be developed for commercial use subject to normal planning consents.

Location

The land is situated in a residential area of Bushey, Hertfordshire. It is a short walk from Bushey Station and Watford Town Centre. The centre has shops, leisure facilities, bars and restaurants. There are large green spaces, a hospital and excellent schools in the area. Bushey Train Station is on the main overground going into Watford Junction then London Euston in 20 minutes. Trains also go north ending at Birmingham New Street Station.

Planning

Planning subject to usual consents.

Tenancy

Vacant

Sector

Commercial

Lease Duration

999 years ( years unexpired)

* Generally speaking Guide Prices are provided as an indication of each seller's minimum expectation, i.e. 'The Reserve'. They are not necessarily figures which a property will sell for and may change at any time prior to the auction. Virtually every property will be offered subject to a Reserve (a figure below which the Auctioneer cannot sell the property during the auction) which we expect will be set within the Guide Range or no more than 10% above a single figure Guide.

Loading the bidding panel...

Agreement Documents

Share