Lot 4 - 138-140 Ball's Pond Road, London, Islington, N1 4AD

  • Unconditional Online Auction Sale
  • Guide Price* : £850,000
  • Bedrooms: 3
  • Bathrooms: 2
  • Reception Rooms: 2

Landmark Auctions Are Pleased To Offer For Sale By Public Auction On : 20th June 2024.


Description

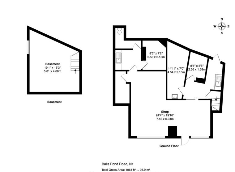
Property comprises a ground floor double fronted shop, currently let to Belleza Beauty Retreat.
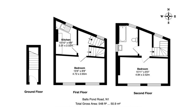
Over first and second floors there are two separate flats.
The shop has been renovated in the last few years and has sole use of garden outside space.
The tenant has six years from September 2021 on the lease and is currently paying £15,465 per annum.
Flat 138a is rented at £1,200 ppm

Tenure

Freehold

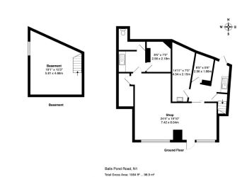
Accommodation

Ground floor double fronted commercial shop trading as a beauty spa
First floor one bedroom flat arranged over 2 floors comprising double bedroom, bathroom, lounge and fitted kitchen
First floor two bedroom flat arranged over 2 floors comprising two double bedrooms, bathroom, lounge and fitted kitchen

Location

This property is located in a residential area close to restaurants, shops, cafés and bars.
There are bus routes which operate to the City and a short walk away is Dalston Junction (Overground).

Tenancy

The commercial shop lease started 29th September 2021 - 28th September 2027
Flat 138a is currently producing £14,400 annually
Flat 140a is vacant ERV £19,800 annually
Belleza Beauty Retreat £15,465 annually

Sector

Mixed commercial and residential

* Generally speaking Guide Prices are provided as an indication of each seller's minimum expectation, i.e. 'The Reserve'. They are not necessarily figures which a property will sell for and may change at any time prior to the auction. Virtually every property will be offered subject to a Reserve (a figure below which the Auctioneer cannot sell the property during the auction) which we expect will be set within the Guide Range or no more than 10% above a single figure Guide.

Loading the bidding panel...

Agreement Documents

Share