5 Princess Louise Square, Alton, Hampshire, GU34 1UE

  • Unconditional Online Auction Sale
  • Guide Price* : £325,000
  • Bedrooms: 3
  • Bathrooms: 1

Landmark Auctions Are Pleased To Offer For Sale By Public Auction On : 30th July 2024.


Description

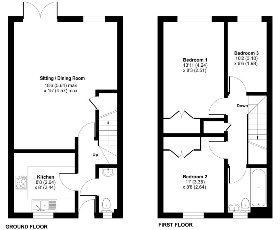
Three bedroom one bathroom end of terrace house.

Tenure

freehold

Accommodation

Ground Floor
Lounge dining room
Kitchen

First Floor
Three bedrooms
Bathroom

Location

This property is located on a modern estate on the edge of a large green. Close by there is a leisure facilities, community hospital and schools. Alton High Street is stocked with shops, eateries, supermarkets, and more. Alton Train Station (South Western Railway) is an eight minute drive or 30 minute walk. The A 31 is nearby for the M3.

Sector

Residential

* Generally speaking Guide Prices are provided as an indication of each seller's minimum expectation, i.e. 'The Reserve'. They are not necessarily figures which a property will sell for and may change at any time prior to the auction. Virtually every property will be offered subject to a Reserve (a figure below which the Auctioneer cannot sell the property during the auction) which we expect will be set within the Guide Range or no more than 10% above a single figure Guide.

Loading the bidding panel...

Agreement Documents

Related Documents

Share