Double retail unit with broad road frontage Significant potential for Residential conversion (STPP). Attractive Capital value of £439/sqft.
Freehold
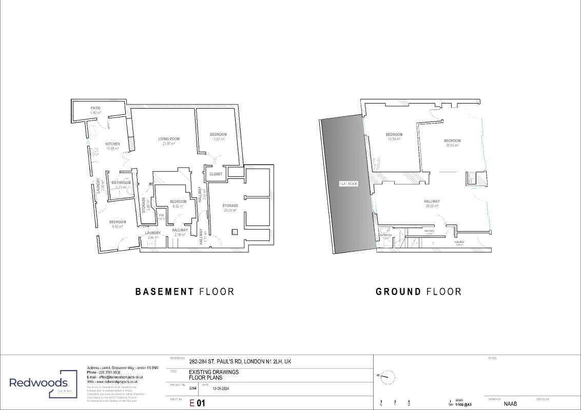
A well positioned building offering in excess of 3,750 sq ft of floorspace, prime for conversion to residential usage (subject to obtaining the necessary consents). The ground floor offers a double-fronted retail unit occupying 890 sq ft with significant ceiling heights north of 3.5m, we would expect the commercial element of the property to achieve in the region of £35,000 per annum. This has previously been used as a health food shop and café with a kitchenette at the rear.
The upper floors are currently laid out as a number of therapy rooms occupied on an ad hoc basis, they lend themselves extremely well to residential conversion (subject to obtaining the necessary consents).
There may be potential, under a certificate of lawful use, to secure additional residential floorspace in the basement level of the premises,
This building occupies an exceptional double frontage on one of the most prominent parades across Highbury & Islington, which is reinforced by the quality of the nearby occupiers including Trullo, Prawn on the Lawn, Sainsburys Local and Yield N1. There is a strong local community with a notable belief in supporting the local community where possible, for this reason there are several highly successful occupiers who may have not seen such fortune in other areas of the capital. Transport Links are abundant with the Victoria Line and Overground accessible within a couple of minutes from Highbury & Islington Tube and numerous bus routes leading directly to the City.
* Generally speaking Guide Prices are provided as an indication of each seller's minimum expectation, i.e. 'The Reserve'. They are not necessarily figures which a property will sell for and may change at any time prior to the auction. Virtually every property will be offered subject to a Reserve (a figure below which the Auctioneer cannot sell the property during the auction) which we expect will be set within the Guide Range or no more than 10% above a single figure Guide.
By setting a proxy bid, the system will automatically bid on your behalf to maintain your position as the highest bidder, up to your proxy bid amount. If you are outbid, you will be notified via email so you can opt to increase your bid if you so choose.
If two of more users place identical bids, the bid that was placed first takes precedence, and this includes proxy bids.
Another bidder placed an automatic proxy bid greater or equal to the bid you have just placed. You will need to bid again to stand a chance of winning.