Lot 1 - 99 Clapham Common North Side, London, SW4 9SQ

  • Unconditional Online Auction Sale
  • Guide Price* : £2,150,000
  • Bedrooms: 9
  • Bathrooms: 6
  • Reception Rooms: 4

99 Clapham Common North is a nine-bedroom building converted into four apartments, with a separate garage included. There is also the option to sell the property as five separate units, with the opportunity to obtain a new 999-year leasehold.


Description

The property features:
A three-bedroom split-level apartment with an open-plan living area and a balcony overlooking the Common
An additional three-bedroom flat
A one-bedroom split-level flat
A two-bedroom flat, with its own private rear garden

All units are designed with modern features, including open-plan living and kitchen spaces, and showcase contemporary interiors with stylish finishes and a focus on bright, spacious living.

A separate garage is available for purchase either with the building or alongside any individual flat at 99 Clapham Common North.

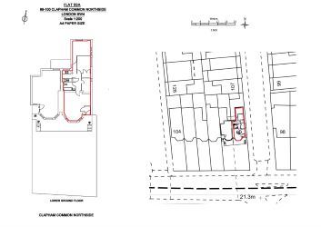
99A 3 bed Lower ground (695 sq,ft)
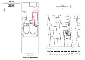
99B 2 bed ground with private rear garden (648 sq,ft)
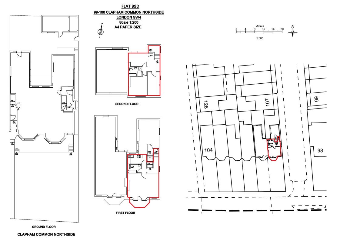
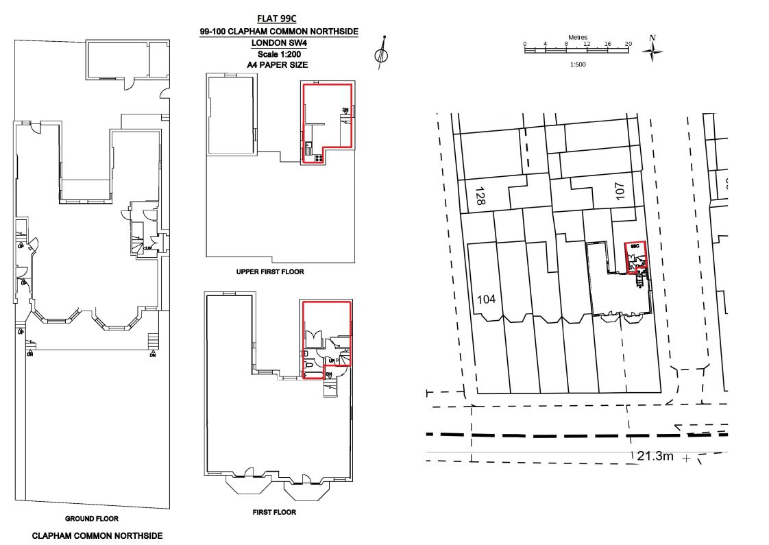
99C 1 bed 1st & 2nd floor (414 sq,ft)
99 d 3 bed 1st & 2nd floor (911 sq,ft)
99 garage (148 sq,ft)
Communal (86 sq,ft)
Total (2902 sq,ft) Inc garage

Tenure

Freehold

Accommodation

2 x 3 Bedrooms
1 x 1 Bedrooms
1 x 2 Bedrooms
1 x Garage

Kitchens
Living Room
Bathroom

Exterior
Garage
Communal Garden

Location

The property is ideally placed for swift and seamless travel across London. Clapham Common Underground Station (Northern Line) offers direct routes to both the City and West End, making daily commuting effortless. In addition, nearby Wandsworth Road Station connects you via the London Overground to hotspots like Shoreditch, Canada Water, and Shepherd’s Bush, with Imperial Wharf offering easy access to Chelsea Harbour and the King’s Road. Numerous bus routes also serve the area, further enhancing transport flexibility.

Tenancy

Achievable market rental income when fully let £150,480 PA. Rental breakdown per unit PCM: 99a £3350 , 99b £2550, 99c £2200, 99d £3990, garage £450, total: £12,540 PCM.

Sector

Residential

* Generally speaking Guide Prices are provided as an indication of each seller's minimum expectation, i.e. 'The Reserve'. They are not necessarily figures which a property will sell for and may change at any time prior to the auction. Virtually every property will be offered subject to a Reserve (a figure below which the Auctioneer cannot sell the property during the auction) which we expect will be set within the Guide Range or no more than 10% above a single figure Guide.

Loading the bidding panel...

Agreement Documents

Legal Documents

Log in to view legal documents

Share