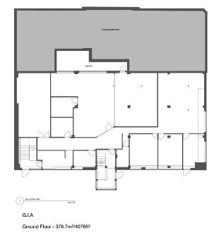
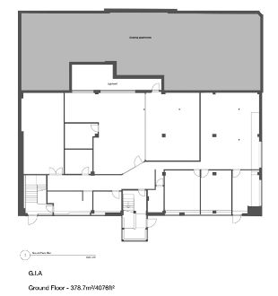
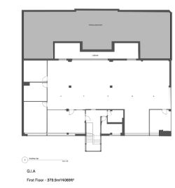
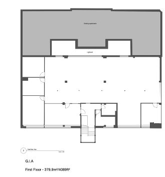
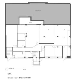
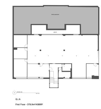
New Hampshire Court presents a rare and exciting opportunity to acquire a substantial modern office building with Prior Approval for residential conversion—and with further planning potential for redevelopment, subject to necessary consents. This development consists of 12,254sq ft of existing office accommodation (Class E) ground and first floors with 8,000+ 4,000sq ft of additional basement space including 2 further office spaces a staff kitchen and considerable storage.
Freehold
12,254 sq ft of existing office accommodation (Class E)
8,000+ sq ft of additional basement storage
28 on-site parking spaces
· M27 & A3(M) motorways
· Southampton International Airport (30 mins)
· Portsmouth International Ferry Port with routes to France and Spain
Community Infrastructure Levy (CIL) Considerations
The existing basement comprises over 8,000 sq ft—equivalent to two additional floors in building mass.
In a redevelopment scenario, this basement could be reconfigured as under croft parking, with two new floors added above ground in its place.
This would result in no net increase in internal floor area (i.e., +8,000 sq ft above, -8,000 sq ft below), thereby mitigating CIL liabilities and generating significant cost savings for a future developer.
Contextual Height and Massing Support
Empire House, partially connected at the rear, is already one storey taller than the subject property and features windows overlooking the shared light-well.
A neighbouring building directly opposite Empire House is five storeys, providing precedent and support for increased height and massing.
Given the scale and configuration of the site, there is potential for further development or intensification, subject to planning, ideal for residential, co-living, or mixed-use schemes.
Mixed use
* Generally speaking Guide Prices are provided as an indication of each seller's minimum expectation, i.e. 'The Reserve'. They are not necessarily figures which a property will sell for and may change at any time prior to the auction. Virtually every property will be offered subject to a Reserve (a figure below which the Auctioneer cannot sell the property during the auction) which we expect will be set within the Guide Range or no more than 10% above a single figure Guide.
By setting a proxy bid, the system will automatically bid on your behalf to maintain your position as the highest bidder, up to your proxy bid amount. If you are outbid, you will be notified via email so you can opt to increase your bid if you so choose.
If two of more users place identical bids, the bid that was placed first takes precedence, and this includes proxy bids.
Another bidder placed an automatic proxy bid greater or equal to the bid you have just placed. You will need to bid again to stand a chance of winning.