Land to the rear of, 72 The Avenue, West Ealing, Ealing, W13 8LB

  • Unconditional Online Auction Sale
  • Guide Price* : £265,000
  • Bedrooms: 2

0.01 Acre Of Land For Sale At The Rear Of 72 The Avenue West Ealing


Description

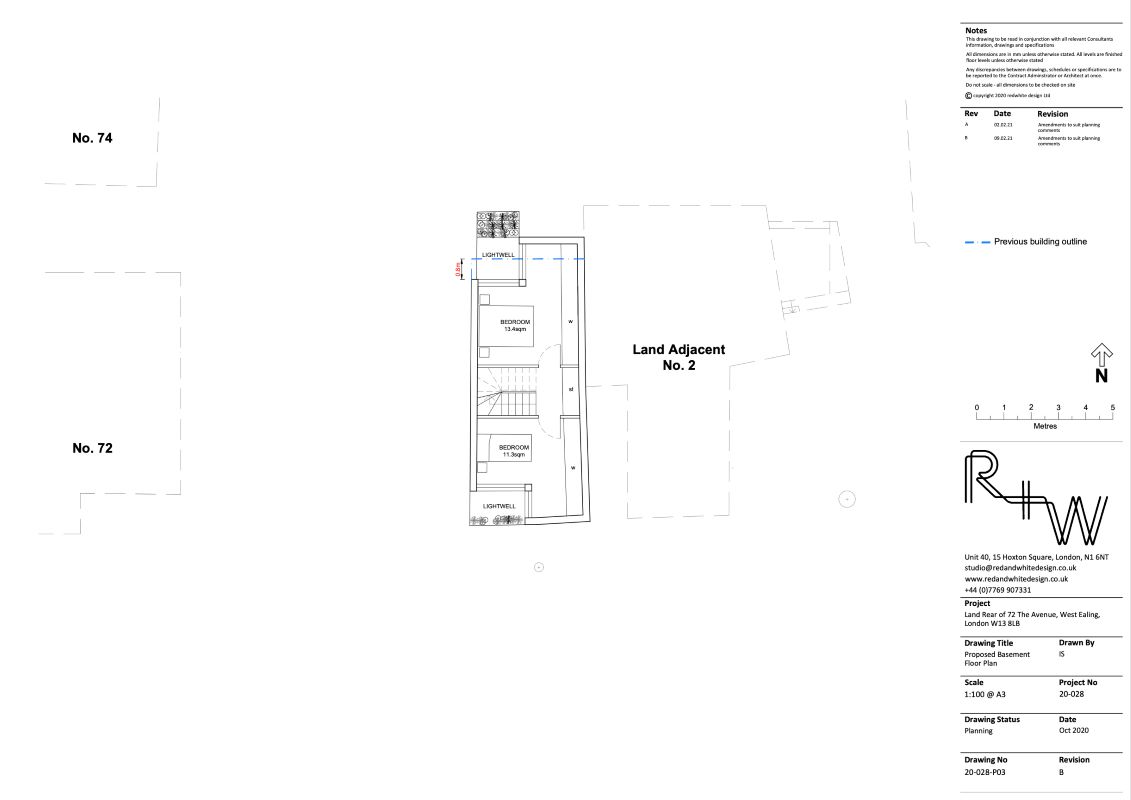
This plot of land has planning for the construction of a 2 storey dwelling with basement level and provision associated private amenity cycle parking and bin storage.

Accommodation

This will be a 2 bedroom dwelling

Location

The property is located in a residential area of West Ealing, the High Street is a 10 minute walk where there are lots of local amenities, supermarkets, shops, restaurants, schools and parks. West Ealing Train Station is a 6 minute walk from the property.

Planning

Planning has been granted REF No 204353FUL

* Generally speaking Guide Prices are provided as an indication of each seller's minimum expectation, i.e. 'The Reserve'. They are not necessarily figures which a property will sell for and may change at any time prior to the auction. Virtually every property will be offered subject to a Reserve (a figure below which the Auctioneer cannot sell the property during the auction) which we expect will be set within the Guide Range or no more than 10% above a single figure Guide.

Loading the bidding panel...

Agreement Documents

Related Documents

Share