Lot 8 - 8,10,12 & 16 Church Street 1 Hedon Road, Kingston upon Hull, HU9 1DU

  • Unconditional Online Auction Sale
  • Guide Price* : 400,000
  • Bedrooms: 0

Addendum

This will be available with the guide price for our May auction

1 Hedon Road & 8,10-14 & 16 Church Street, Hull, HU9 1DU


Description

This detached property on a corner plot is a mix of offices, workshop and a print factory over two floors. There is side access to the rear of the property via Church Street.
Redevelopment Potential Subject To Consents Or Asset Management Opportunities In Current Format.

Tenure

Freehold

Accommodation

Asset managment potential for letting the property in its current format.
Planning granted permission in 2008 for a five storey, 48 bedroom hotel, now expired.
Planning permission granted in 2014 for a 124 bedroom student scheme, now expired.
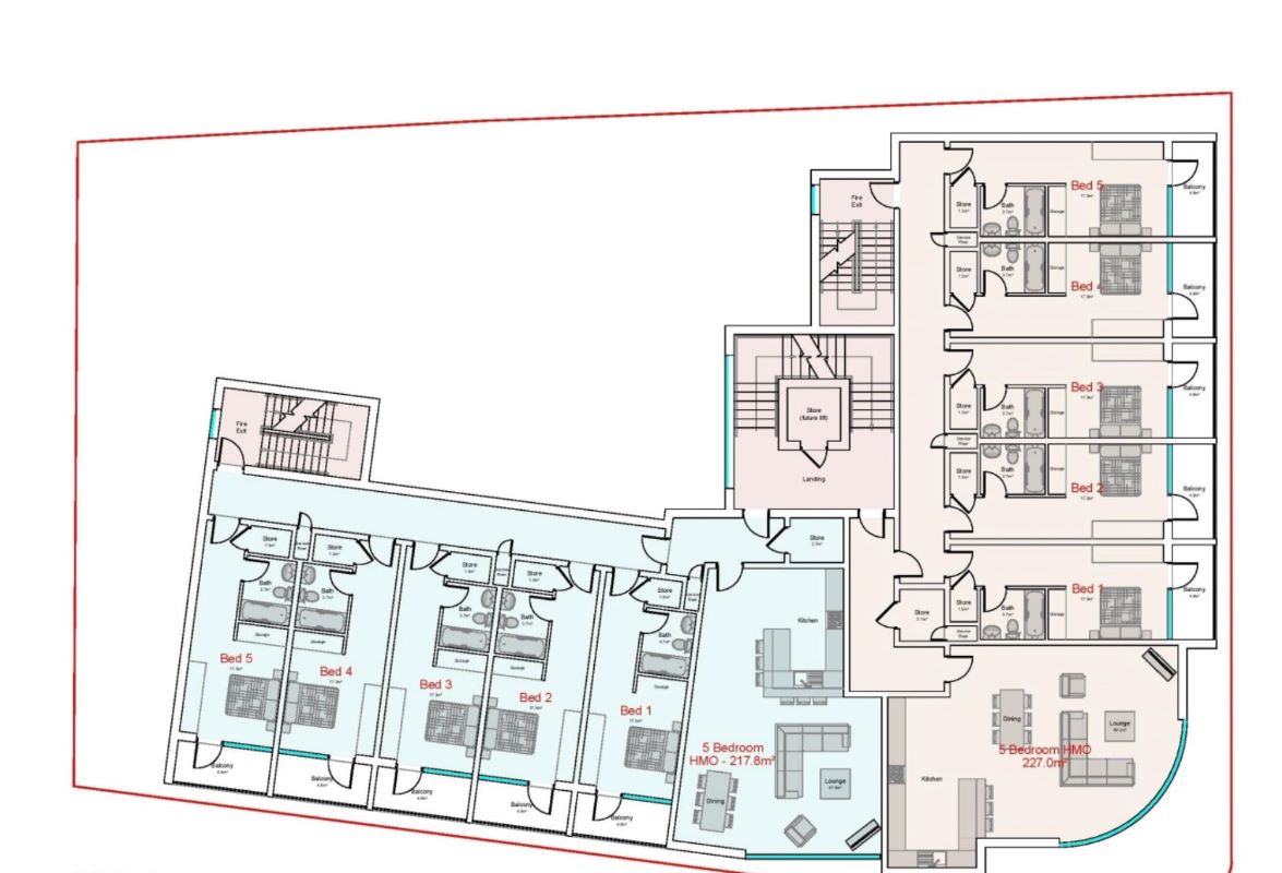
A proposed HMO scheme with 40 rooms and associated communal areas has been drawn up.

Location

This property is situated on the corner of Church Street and Hedon Road. There are local shops and amenities all within walking distance. Hull Train Station is a 20 minute walk.

Planning

13/00646/FULL. Granted 2014 Expired
08/00959/RES. Granted 2008 Expired

* Generally speaking Guide Prices are provided as an indication of each seller's minimum expectation, i.e. 'The Reserve'. They are not necessarily figures which a property will sell for and may change at any time prior to the auction. Virtually every property will be offered subject to a Reserve (a figure below which the Auctioneer cannot sell the property during the auction) which we expect will be set within the Guide Range or no more than 10% above a single figure Guide.

Loading the bidding panel...

Agreement Documents

Share