Lot 16 - 102 Withy Mead, Chingford, London, E4 6JW

  • Unconditional Online Auction Sale
  • Guide Price* : £385,000
  • Bedrooms: 3
  • Bathrooms: 1
  • Reception Rooms: 1

Addendum

Postponed to auction on 14 December 2023

LANDMARK AUCTIONS ARE PLEASED TO OFFER FOR SALE BY PUBLIC AUCTION ON : Thursday, 2 NOVEMBER 2023


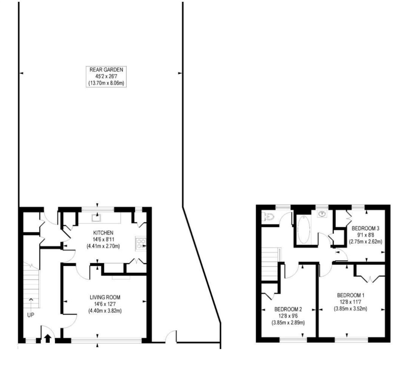
Description

A three bedroom semi-detached house in need of modernisation

Tenure

Freehold

Accommodation

Kitchen
Large Living Room
Understairs Cupboard (suitable to convert to a WC subject to usual consents)
Three bedrooms
Bathroom
Separate WC

Location

Chingford Station is a short bus ride away. Highams Park with its forests, country parks, lakes and open green spaces all by a large lake are closely. Hatch Park is still within easy walking distance. The Local amenities are ideal as supermarkets are also within walking distance as is Chingford Leisure Centre.

* Generally speaking Guide Prices are provided as an indication of each seller's minimum expectation, i.e. 'The Reserve'. They are not necessarily figures which a property will sell for and may change at any time prior to the auction. Virtually every property will be offered subject to a Reserve (a figure below which the Auctioneer cannot sell the property during the auction) which we expect will be set within the Guide Range or no more than 10% above a single figure Guide.

Loading the bidding panel...

Agreement Documents

Related Documents

Share