Lot 18 - 77A Station Road, Woburn Sands, Milton Keynes, Buckinghamshire, MK17 8SH

  • Unconditional Online Auction Sale
  • Guide Price* : 600,000
  • Bedrooms: 4

Addendum

This property has now been let by the vendor.

LANDMARK AUCTIONS ARE PLEASED TO OFFER FOR SALE BY PUBLIC AUCTION ON : Thursday, 2 NOVEMBER 2023


Description

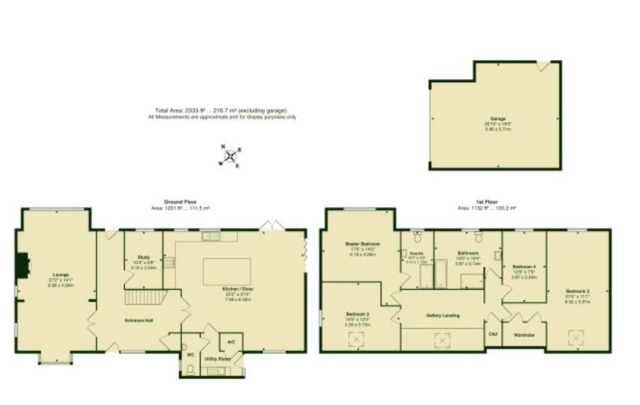
A new build home (2017) available for sale in the heart of Woburn Sands. Benefitting from a generous plot, driveway parking for four vehicles and an oversized double garage; this exceptional high-spec property also boasts under floor heating on the ground floor, full double glazing throughout and an integral fire suppression system.

Tenure

Freehold

Accommodation

Galleried entrance hall, downstairs cloakroom, large lounge, study, 25' x 21' kitchen/diner/family room, gallery 1st floor landing, master bedroom with en-suite, three further bedrooms and family bathroom.

Location

The property is situated in the Buckinghamshire village of Woburn Sands, within a 2 minute walk of local shops, pubs, restaurants and a railway station with services to Euston via Bletchley. M1 junction 13 is 2.5 miles north east of Woburn Sands and is accessible by car within approximately 5 minutes. There are highly regarded lower and middle schools within 10 minutes walking distance and Aspley Guise and Woburn Sands Gold Club is a 15 minute walk.

Sector

Residential

* Generally speaking Guide Prices are provided as an indication of each seller's minimum expectation, i.e. 'The Reserve'. They are not necessarily figures which a property will sell for and may change at any time prior to the auction. Virtually every property will be offered subject to a Reserve (a figure below which the Auctioneer cannot sell the property during the auction) which we expect will be set within the Guide Range or no more than 10% above a single figure Guide.

Loading the bidding panel...

Agreement Documents

Related Documents

Share